selected work
office
press
selected work
office
press
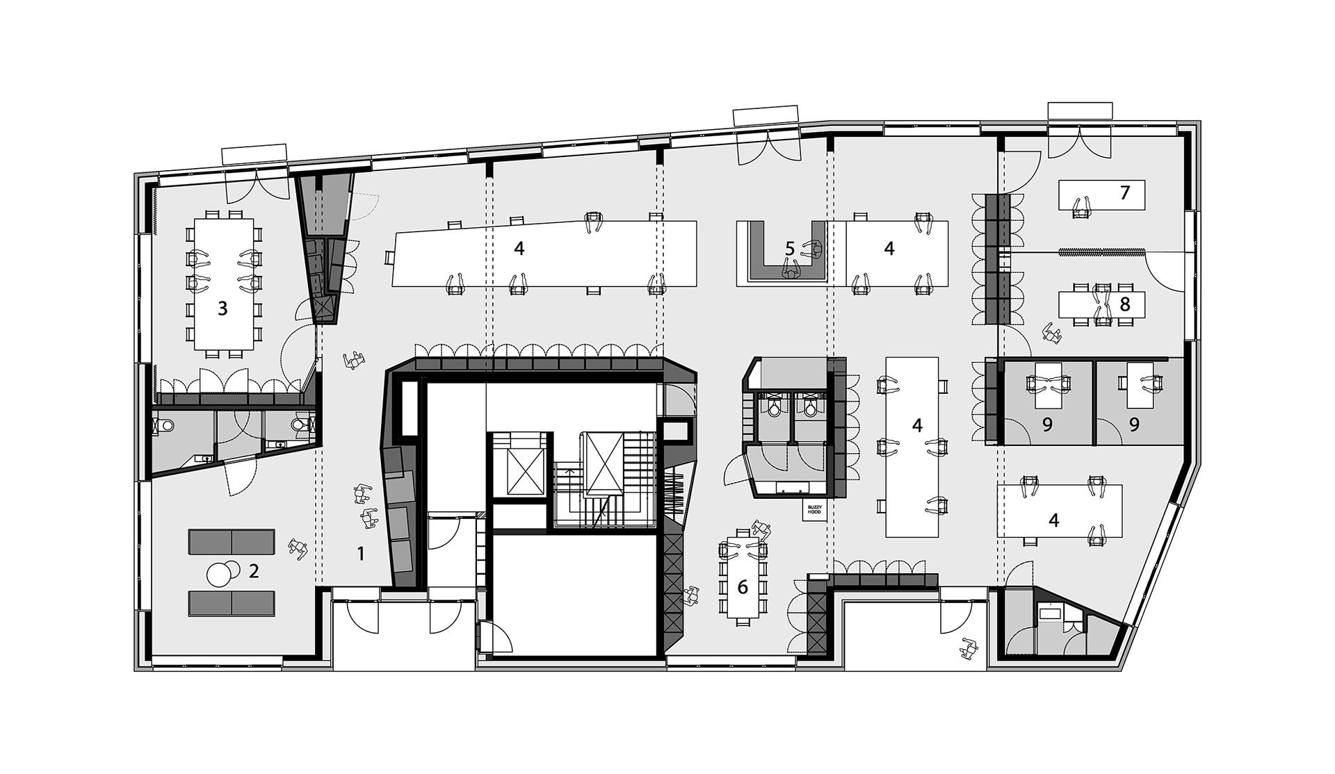
Revive kantoor
klant: Revive units: kantoor locatie: Gentbrugge fotografie: Koen Van Damme
↑
Up